Daudzfunkcionāla, ekonomiska un romantiska…
Šie ir vārdi, kas raksturo mūsu jauno māju – Carmen.
Māja patiks tiem, kuri pieturas pie klasiskām vērtībām.
Dzīvojamā istaba ir savstarpēji savienotas ar virtuvi, piešķirot tai optiski vairāk plašumu, kā arī telpa kļūst mājīgāka un gaišāka.
Mājas projektā iekļautā esošā atsevišķā guļamistaba ļaus ikvienam atpūsties pēc garas darbadienas vai baudīt mierīgu vakaru.
Koks, plašs stiklojums un labi pārdomāts plānojums, ir vērtības, kuras raksturo māja Carmen.

Mājas komplektā iekļauts:
- Sienu konstrukcija
- Jumta un grīdas konstrukcijas
- PVC logi un durvis
- Grīdas un griestu apdares dēļi
- Grīdas un griestu apdares dēļi
- Mehānismi, skrūves, leņķi
- Montāžas instrukcija
Mājas uzbūve:
- Pieejamie sienu biezumi mm: 45, 90, 120, 150, 200
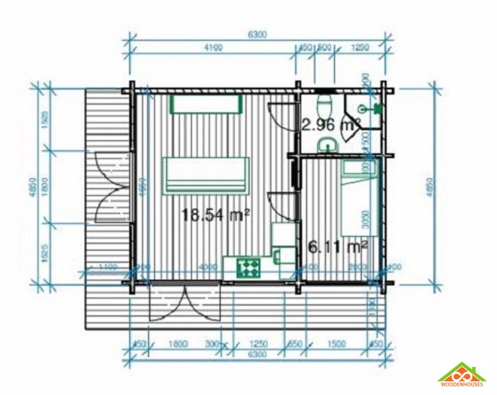
- Platība: 30 m²
- Iekšējais izmērs mm: 6100 x 4750 mm
- Ārējais izmērs mm: 6300 x 4850 mm
- Jumta pārkare mm: 300 mm
- Sānu sienas augstums mm: 3470 mm
- Kores augstums mm: 4000 mm
- Logu un durvju veids: PVC
- Durvju izmēri mm: 1800 x 2000 mm (2 gab.)
- Jumta dēlis mm: 19 mm
- Grīdas dēlis mm: 28 mm
- Jumta veids: Divslīpju
- Telpu skaits: 4 gab.

Woodenhouses būs Tavs uzticamais partneris būvniecības darbos.
Māja – Carmen










